

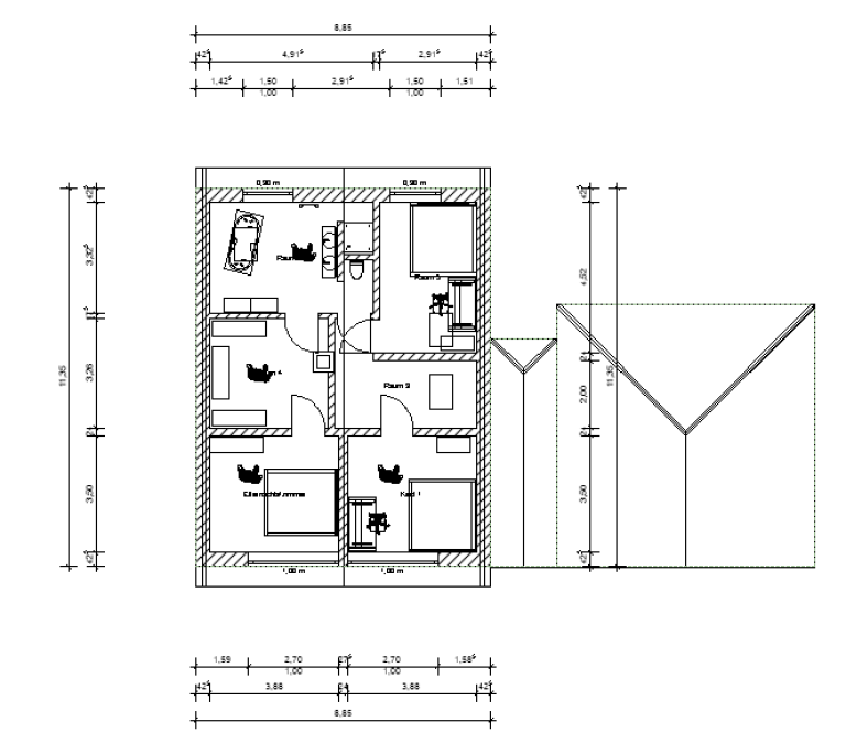
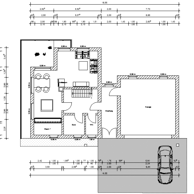
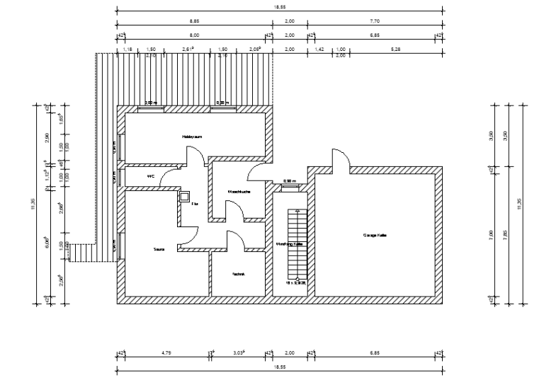
Einfamilienhaus "Riesblick"
Bauart EFH mit Doppelgarage
Dachart Satteldach 48° Neigung
Besonderheiten
- Abstandsflächen wurden ausgereizt & bis zur Grenze geplant
- ebenerdiger Ausgang im Kellergeschoss zum Garten
- leichte Hanglage (3m Höhenversatz)
- Fokus auf großzügige Gestaltung des Wohnbereichs im EG
- geräumige Terrasse mit "Riesblick"
- Nische im EG wird als Terrassendach genutzt




